Atrakcyjna inwestycja !

malborski, Malbork

5 400 000 PLN

Numer oferty2531
Typ transakcjiSprzedaż
Cena5 400 000 PLN
Powierzchnia30 300 m2
Cena za m2178 PLN / m2
Przeznaczeniebudownictwo wielorodzinne
Typ działkiinwestycyjna
Typ ogrodzeniabrak
Typ drogiasfaltowa
Powierzchnia mieszkalna18 450
Liczba kondygnacji3
Powierzchnia zabudowy35
Forma własnościwłasność
Wysokość min.16
Prądjest
Wodamiejska
Kanalizacjamiejska
Położenie i wygląd działkipusta
Atrakcyjna inwestycja ! (malborski, Malbork)

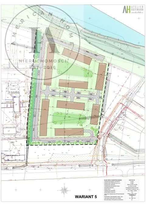
Sprzedam dwie działki w miejscowości Malbork
DZIELNICY PIASKI/RAKOWIEC/W MALBORKU

MW.1 - teren zabudowy mieszkaniowej wielorodzinnej


PUM 18450

8 Budynków - 348 mieszkań


1. powierzchnia ewidencyjna działek: 30300m2

2. wysokość zabudowy 3 kondygnacje+poddasze, max 16m

3. rodzaj dachu dach wysoki 35stopni, ścianka kol. 1,2m

4. przybliżona ilość mieszkań - 348.

5. ilość miejsc postojowych na terenie 137+ 10NP =147 min. ilość miejsc postojowych w garażach 201


Więcej informacji udzielę telefonicznie bądź na e-maila.

Do ceny należy doliczyć podatek VAT

Decydując się na zakup działki w biurze American Home masz możliwość oddać kredytowanie w dobre ręce naszego eksperta finansowego, w zamian zyskujesz że Doradca zadba o indywidualne interesy każdego klienta, pomoże skompletować niezbędne dokumenty i zrobi wszystko by decyzja była pozytywna.

Przy zakupie należy uwzględnić koszty notarialne oraz wynagrodzenie biura nieruchomości w wysokości 1,20 % brutto. 


Już dziś, zapraszamy Was do naszego nowoczesnego biura na Starym Mieście
American Home - biuro nieruchomości
ul. Studzienna 15 A, w Elblągu.

Gdy spotykają się marzenia, pojawiamy się My, by spełnić Wasze marzenia.


Informacje o nieruchomości zostały sporządzone na podstawie oświadczeń i nie są ofertą w rozumieniu przepisów prawa. Mają wyłącznie charakter informacyjny i mogą podlegać aktualizacji.


"Właścicielem ogłoszenia wraz z jego elementami jest American Home Łukasz Szulc lub podmioty współpracujące. Wszelkie prawa zastrzeżone. Kopiowanie, rozpowszechnianie oraz korzystanie z niniejszych materiałów w jakikolwiek inny sposób wykraczający poza dozwolony użytek określony przepisami ustawy z 4 lutego 1994 r. o prawie autorskim i prawach pokrewnych (Dz. U. 1994, nr 24 poz. 83 z późn. zm.) bez pisemnej zgody American Home Łukasz Szulc lub podmiotów współpracujących jest zabronione i może stanowić podstawę odpowiedzialności cywilnej oraz karnej.

Ponadto niniejsze materiały stanowią tajemnicę przedsiębiorstwa American Home Łukasz Szulc lub podmiotów współpracujących w rozumieniu ustawy z dnia 16 kwietnia 1993 r. o zwalczaniu nieuczciwej konkurencji (Dz. U. z 2003 r., Nr 153, poz. 1503 z późn. zm.). Niniejsze ogłoszenie nie stanowi oferty w rozumieniu Kodeksu Cywilnego, lecz ma charakter informacyjny."
Informacje
Wypis z planu zagosp.
malborski, Malbork

Kontakt