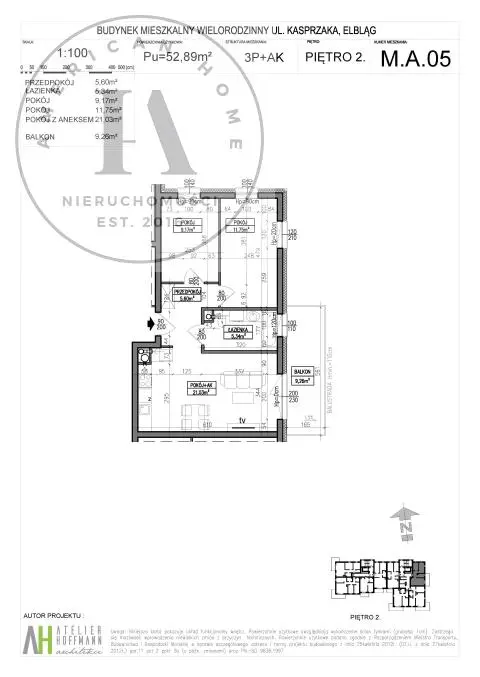
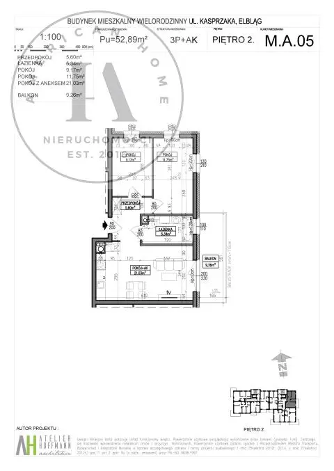
M.A.05 / 52,89 m², II piętro

Elbląg, Marcina Kasprzaka

428 409 PLN

Offer number2925
Transaction typeSale
Price428 409 PLN
Total area52.89 m2
Price per m28 100 PLN / m2
Rooms3
Floor2/9
Year built2026
Buiiding typeapartament block
Marketprimary
Staircasepost rennovation
Building materialbreeze blocks
Ownership formownership
Number of bedrooms2
Audibilityquiet
Kitchenkitchenette
Bathroomwith wc
WindowsPCV
Flooringconcrete
Wallsplaster
Height270
Internet connectionfiber
Parking typeunderground parking
Number of parking spaces1
Heatingcentral - city
Balcony Typelarge, yes
M.A.05 / 52,89 m², II piętro (Elbląg, Marcina Kasprzaka)

Mieszkanie, które nie pyta czy, tylko mówi chodź.

W samym sercu Elbląga, w miejscu, gdzie dzień zaczyna się od słońca wpadającego przez okno, a kończy filiżanką herbaty na balkonie zostało jedno z ostatnich wolnych mieszkań w inwestycji Apartamenty Zawada przy ul. Kasprzaka.
I to nie byle jakie mieszkanie, tylko takie, które naprawdę coś sobą reprezentuje:

Lokal M.A.05 o powierzchni 52,89 m², II piętro

Przestrzeń, która pomieści Twoje plany, koty, książki i wszystkie to się jeszcze przyda. Przemyślany układ, idealny dla pary, singla, młodej rodziny albo kogoś, kto po prostu zasługuje na coś nowego. Balkon? Jest, słoneczny, czeka na hamak albo doniczki. Światłowód? Też jest bo życie bez Wi-Fi to nie życie.


A co wokół?

Biedronka wiadomo, klasyka, przystanki miejskie bo nie zawsze chce się prowadzić, Park Modrzewie idealny na spacery i zebranie myśli, Szkoła, przedszkole, żłobek czyli wszystko, czego potrzebują najmłodsi, ekspresowy wyjazd na S7 gdy życie woła dalej. Brzmi dobrze?

To teraz już tylko:

Dzwonisz lub piszesz. Umawiamy się na spotkanie, wybierasz to mieszkanie (bo ono już wybrało Ciebie). Załatwiamy wszystko razem finansowanie, dokumenty, notariusz. Odbierasz klucze i zaczynasz nowy rozdział .


Już dziś, zapraszamy Was do naszego nowoczesnego biura na Starym Mieście
American Home - biuro nieruchomości Studzienna 15 A, w Elblągu. 


Gdy spotykają się marzenia, pojawiamy się My, by spełnić Wasze marzenia.


Informacje o nieruchomości:
Wszystkie informacje prezentowane na naszej stronie zostały sporządzone na podstawie oświadczeń właścicieli nieruchomości lub podmiotów współpracujących i mają wyłącznie charakter informacyjny. Nie stanowią one oferty w rozumieniu przepisów prawa, w tym Kodeksu Cywilnego. Mogą one ulegać zmianom lub aktualizacjom – zalecamy kontakt z biurem w celu uzyskania najbardziej aktualnych danych.

Prawa autorskie i korzystanie z materiałów:
Właścicielem treści ogłoszeń, zdjęć, opisów i innych materiałów jest American Home Łukasz Szulc lub podmioty współpracujące. Wszelkie prawa są zastrzeżone. Kopiowanie, rozpowszechnianie lub wykorzystywanie materiałów w sposób wykraczający poza dozwolony użytek, określony ustawą o prawie autorskim i prawach pokrewnych (Dz. U. z 1994 r., nr 24, poz. 83 z późn. zm.), bez uprzedniej pisemnej zgody właściciela, jest zabronione i może pociągać konsekwencje cywilne i karne.

Tajemnica przedsiębiorstwa:
Materiały te stanowią również tajemnicę przedsiębiorstwa American Home Łukasz Szulc lub podmiotów współpracujących, w rozumieniu ustawy o zwalczaniu nieuczciwej konkurencji (Dz. U. z 2003 r., Nr 153, poz. 1503 z późn. zm.).

RODO – ochrona danych osobowych:
Administratorem danych osobowych przekazywanych za pośrednictwem strony jest American Home Łukasz Szulc. Dane osobowe są przetwarzane wyłącznie w celu realizacji usług związanych z prezentacją nieruchomości, kontaktu z klientem oraz obsługi zapytań. Podstawą prawną przetwarzania danych jest zgoda osoby, której dane dotyczą, oraz prawnie uzasadniony interes administratora. Osoba, której dane dotyczą, ma prawo dostępu do swoich danych, ich poprawiania, żądania ograniczenia przetwarzania oraz wniesienia sprzeciwu wobec przetwarzania. Szczegółowe informacje na temat przetwarzania danych osobowych i polityki prywatności znajdują się w zakładce Polityka prywatności.

Wskazówka dla użytkownika:
Przed podjęciem decyzji o zakupie lub wynajmie nieruchomości zalecamy kontakt z naszym biurem w celu weryfikacji szczegółów, oględzin lokalu oraz uzyskania wszystkich niezbędnych informacji
Information
Internet Basement Intercom Elevator Burglar-proof doors/windows Accommodations for the disabled
Elbląg, Marcina Kasprzaka
Floor plan

Contact an angent